Eladó Telek, Balatonfüred
Address | |||
| Hungary, Veszprém, 8230 Balatonfüred | |||
Technical data | |||
| Water | Utcában | Gas | Utcában |
| Electricity | Utcában | Sewerage | Utcában |
Description | |||
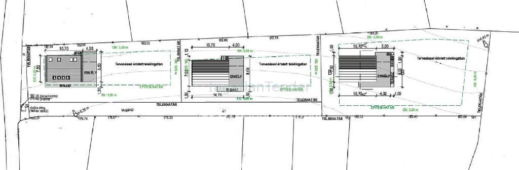
Balatonfüreden 751 m2-es, panorámás építési telek eladó. Az ingatlan a város Szőlőfő részén, kertvárosias lakóövezetében helyezkedik el, 2,5-3 km-re a Balaton-parttól, vitorláskikötőtől, strandtól. A telek 20%-a beépíthető, a legnagyobb épületmagasság 4,5 m. Kész tervek rendelkezésre állnak. A mellette lévő két telek is eladó, külön-külön és egyben is. A fénykép illusztráció. Az ár nettó ár, az eladási ár ÁFA-val 101.600.000 Ft. Kiváló és ritka lehetőség állandó lakóhelynek, nyaralónak és befektetésnek is! Bővebb információért keressen telefonon! Referencia szám: M272121 | |||


