Eladó Lakás, Szentes

Pénzügyek
(tájékoztató példa, nem minősül ajánlatnak)

Vételár
42 000 000 Ft

25% önerő
10 500 000 Ft

Lakáskölcsön (piaci)
31 500 000 Ft

Törlesztőrészlet 20 éves futamidővel 308 215 Ft

Az itt látható számok, jelen piaci körülmények között általánosan elérhető lehetőségek közül kerültek kiemelésre, így nem ajánlattétel, minden esetben pontos minősítés szükséges.
Address
Hungary, Csongrád, 6600 Szentes
Building
Year of construction2025 évConstraction typeTégla
Technical data
FloorFöldszintHeatingEgyéb
Komfort típusÖsszkomfort
General
Collective maintanence fee1 FtParkingTeremparkoló
Rooms
Number of bedrooms1Small rooms2
Description

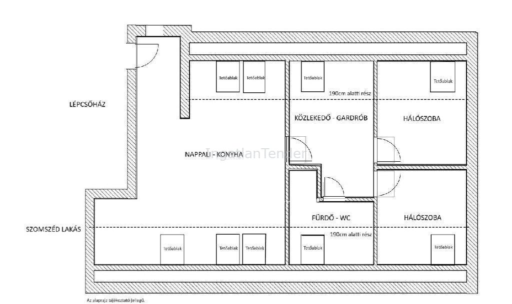
Szentesi, zöldövezeti, energiahatékony újépítésű lakások leköthetők --- az OTP Ingatlanpontnál! Már csak 4 lakás elérhető! Modern, elegáns megjelenés, korszerű anyagok és kellemes, zöld környezet jellemzik ezt a projektet. A parkosított telken két lakóház (földszint, emelet, tetőtér) valamint garázsok kerültek elhelyezésre. Az egyik lakóépületben hat lakás, a másikban nyolc lakás kap helyet. A lakásokba zárt lépcsőházon keresztül juthatunk. A tetőéri lakások alapterülete 82,8m2, melyből a ?hasznos? (190cm magasság feletti rész) 53,56m2. A tágas amerikai konyhás nappali mellett 2 hálószoba, közlekedő ? gardrób, valamint fürdőszoba áll rendelkezésre. A fűtést és a melegvizet hőszivattyú fogja ellátni, padlófűtéssel, lakásonként egyedi mérési lehetőséggel. Az ár a kulcsrakész állapotra vonatkozik. A lakásokhoz garázs is vásárolható. Ha számít Önnek az egyedi, elegáns környezet, valamint az alacsony fenntartási költségek, akkor ne gondolkozzon tovább! További információért hívjon bizalommal! Az OTP Ingatlanpont teljes körű ügyintézéssel áll az eladók és vevők rendelkezésére. A kínálatunkból választott ingatlan finanszírozásához kedvezményes hitelkonstrukciót biztosítunk. Az OTP Banknál elérhető Babaváró, falusi CSOK, CSOK Plusz hitel és egyéb kölcsönök intézését díjmentesen vállaljuk. Az adásvételi szerződés megkötéséhez igény szerint ügyvédet biztosítunk. Érdeklődni: Lázár Krisztina

Referencia szám: M293794-ITE

Sell — Apartment
  • Square:53 m2
  • Number of bedrooms:{n} + {n} small
  • Listing ID:491996
  • Sell price
  • 107 621
    €/m2 2 031
Listing was posted by

Take a photo of the code below with your phone and view the ad on other devices also.

Looking for real estates?

Regisztráljon keresőként, akár kiemelésekkel

apply paid services

Similar listings
^ Go up
Tips
Regisztráljon oldalunkon, mint kereső és ezzel célzott a feltételeknek megfelelő ingatlanokról kaphat ajánlatokat.
I don't want any more tips