Eladó Lakás, Levél
Address | |||
| Hungary, Győr-Moson-Sopron, 9221 Levél | |||
Building | |||
| Year of construction | 2025 év | Constraction type | Tégla |
Technical data | |||
| Floor | 1 | Heating | Cirkó |
| Komfort típus | Összkomfort | ||
General | |||
| Parking | Teremparkoló | ||
Rooms | |||
| Number of bedrooms | 3 | ||
Description | |||
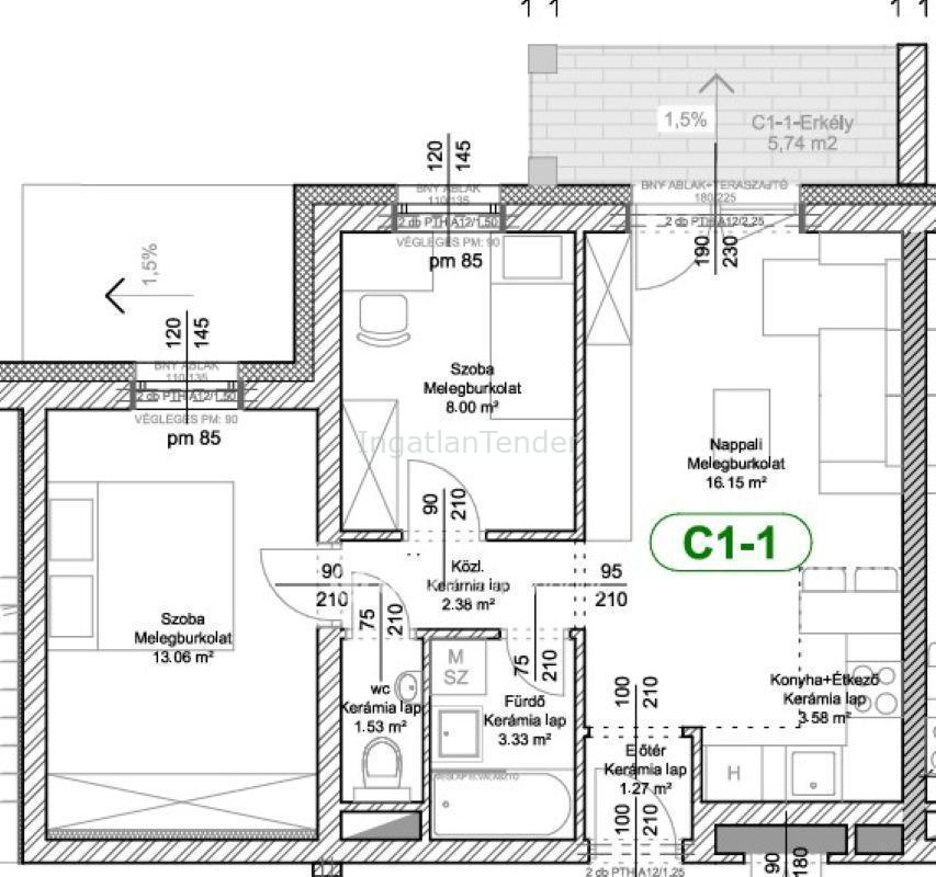
Győr-Moson-Sopron vármegyében, Levélen, modern lakások átgondolt műszaki tartalommal, jó minőségű beépített anyagokkal, új építésű projektben leköthetők! Épületszerkezet: Monolit vasbeton vázszerkezet, falazata: Leiertherm 30 N+F tégla, válaszfalak 10cm-es hanggátló téglából készülnek. Homlokzati hőszigetelés 15 cm vastagságú Austrotherm Dryvit rendszerrel, zárófödém szigetelés AUSTROTHERM AT-N100 rendszer. Nyílászárók: 3 rétegű 5 légkamrás üvegezéssel ellátott. A földszinti lakások - szinte mindegyike - kizárólagos használatú kerttel, az emeleti lakások erkéllyel rendelkeznek. A lakásokhoz tároló, és parkoló igény szerint vásárolható. A fűtésről-melegvízellátásról központi turbó gázkazán gondoskodik, padlófűtéssel egyedi hőmennyiségmérővel. A feltöltött képek csak illusztrációk! Modern megoldásokkal és változatos alaprajzokkal várja Önt is leendő lakása. Nyugodt, zöld környezet,tágas, napfényes lakások-hozzátartozó teraszokkal, kertekkel, több éves tapasztalattal rendelkező kivitelező! Kiemelt bérbeadhatóság, garantált bérleti díj! Otthon start hitelprogram! Amennyiben további kérdése van forduljon hozzám bizalommal elérhetőségeimen! Hivatkozási szám: M312822 Referencia szám: M312822-ITE | |||


