Eladó Lakás, Ballószög
Address | |||
| Hungary, Bács-Kiskun, 6035 Ballószög | |||
Building | |||
| Year of construction | 2022 év | Constraction type | Tégla |
Technical data | |||
| Floor | 1 | Heating | Házközponti fűtés |
| Komfort típus | Összkomfort | ||
General | |||
| Parking | Telken parkoló | ||
Rooms | |||
| Number of bedrooms | 2 | ||
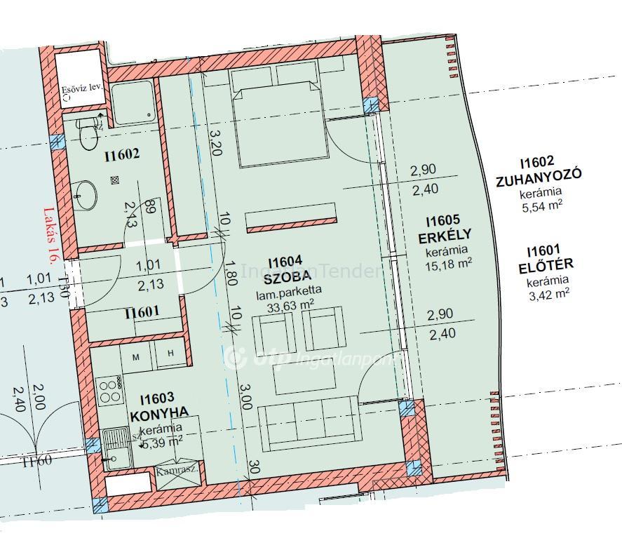
Description | |||
Bács-Kiskun vármegye, Kecskemét mellett eladó lakások egy Idősek Otthona Lakóparkban! 1. emeleti lakás, alapterülete 63,2 m2, melyből 15,2 m2 erkély. Nappali, hálófülke, konyha, előszoba és fürdőszoba wc-vel található benne és nagy terasz tartozik hozzá. A most épülő lakások már csak 40 %-a érhető el, így érdemes minél előbb választani! Befektetők részére is ajánljuk, hiszen bérbe adható és örökölhető a saját tulajdonú ingatlan, ahol szinte teljes körű ellátás kérhető egy Wellness és Termálfürdő szomszédságában. Magyarországon egyedülállóan magas színvonalat és kényelmet biztosít lakói számára egészségügyi ellátásban és különböző szolgáltatásokban igény szerint. Lakóit 35 hektáros területen gyönyörű környezet, kisebb tavak, csónakázó tó, vízesés, biztonság és nyugalom veszi körül, ahol magas élet színvonalon élhetnek. A tulajdonos magánkórház megépítését is tervezi, Aki már több, mint 20 éves szakmai tapasztalattal működteti a jelenlegi idősek otthona intézményt is. Lehetőség lesz teniszpálya, étterem, pizzéria, cukrászda használatára egy hatalmas terasszal és szépségápolási szolgáltatásokra is pl.: fodrászat, pedikűr, manikűr stb. Mindez egy helyen egy csodálatos komplexumban , melyet személyesen is megtekinthet. Befektetőktől az elkészült lakásokat a tulajdonos 3 éves időtartamra visszabérli és minden ezzel járó kötelezettséget átvállal. NE MARADJON LE RÓLA! Megtekintésért kérem hívjon bizalommal! | |||


