Eladó Ház, Szegvár

Pénzügyek
(tájékoztató példa, nem minősül ajánlatnak)

Vételár
9 800 000 Ft

25% önerő
2 450 000 Ft

Lakáskölcsön (piaci)
7 350 000 Ft

Törlesztőrészlet 20 éves futamidővel 71 917 Ft

Az itt látható számok, jelen piaci körülmények között általánosan elérhető lehetőségek közül kerültek kiemelésre, így nem ajánlattétel, minden esetben pontos minősítés szükséges.
Address
Hungary, Csongrád, 6635 Szegvár
Building
AltípusCsaládiYear of construction1960 év
Constraction typeVegyes
Technical data
HeatingHázközponti fűtésKomfort típusÖsszkomfort
WaterTelkenGasVan
ElectricityTelken
General
ParkingTelken parkoló
Rooms
Number of bedrooms1Small rooms1
Description

Csak az OTP Ingatlanpontnál!!! Eladásra kínálunk Csongrád-Csanád vármegyében Szegváron egy kis kertes házat. Az ingatlan csendes forgalomtól mentes utcájában található, egy perc sétára a Kurca folyótól. A falak 60%-át kicserélték téglára, a maradék vályogfalakat aláfalazták, így a ház vízszigetelése tökéletes. A fűtés vegyestüzelésű kazánról működik, de a gázcsonk a telekhatáron van. A melegvizet villanybojler adja. A 1079m2-es telek lehetőséget ad bővítésre, kertészkedésre. Aki szereti a csendet, szeret nagyokat sétálni, horgászni, annak tökéletes választás. Az OTP Bankcsoport teljes körű ügyintézéssel áll az eladók és a vevők rendelkezésére! A kínálatunkból választott ingatlan finanszírozásához kedvezményes hitel konstrukciókat kínálunk. Legújabb szolgáltatásként ajánlom minden kedves ügyfelem részére az OTP Bank által közvetített Babaváró, CSOK PLUSZ, Falusi CSOK, vagy egyéb kölcsönök intézését. Az adásvételi szerződés megkötéséhez igény szerint megbízható ügyvédi közreműködést biztosítunk, és segítséget nyújtunk az adásvételhez kapcsolódó ügyek intézéséhez. Irodáink Szentes, Petőfi utca 12. (a buszmegálló felől) és Csongrád, Fő utca 54. szám alatt várja a személyes érdeklődőket. Akár hétvégén is hívható vagyok! Amennyiben igényli, kérem küldjön SMS-t és szívesen visszahívom!

Referencia szám: M305428

Sell — House
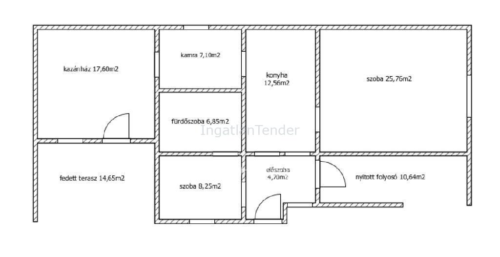
  • Square:83 m2
  • Plot area (m2):1079 ares
  • Number of bedrooms:{n} + {n} small
  • Listing ID:619375
  • Sell price
  • 25 184
    €/m2 303
Listing was posted by

Take a photo of the code below with your phone and view the ad on other devices also.

Looking for real estates?

Regisztráljon keresőként, akár kiemelésekkel

apply paid services

Similar listings
^ Go up