Eladó ház, Kecskemét
Address | |||
| Hungary, Bács-Kiskun, 6000 Kecskemét | |||
Building | |||
| Altípus | Családi | Year of construction | 1975 év |
| Constraction type | Tégla | ||
Technical data | |||
| Heating | Gázkazán | ||
General | |||
| Orientation | északkelet | ||
Rooms | |||
| Number of bedrooms | 6 | ||
Description | |||
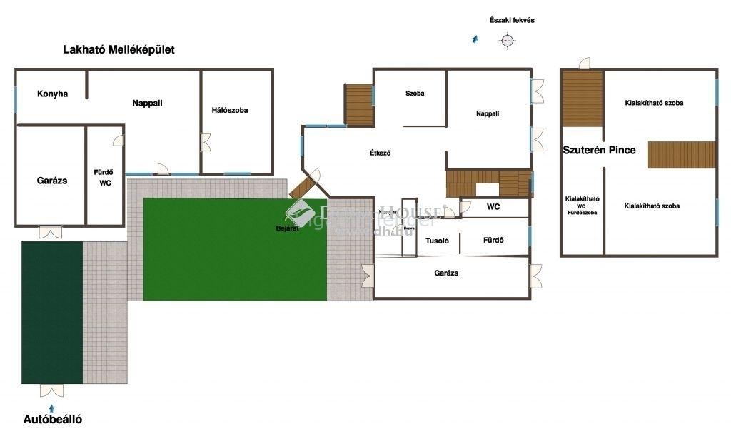
Ez az ingatlan Máriavárosban található, és különleges lehetőséget kínál, hiszen két ház található egy telken. Ideális választás lehet kétgenerációs otthonként, ügyvédi irodaként, fogászati rendelőként, vagy akár kis üzletként. Az ingatlan befektetésre is tökéletes, hiszen sokféle célra hasznosítható, és a környék infrastruktúrája is kedvező.Főbb jellemzők:Elhelyezkedés: Máriaváros, egy jól megközelíthető, fejlődő városrész.Két ház egy telken: Külön bejáratokkal, így akár külön funkciókra is használható.Készültségi szint: Az ingatlan 90%-ban kész, de az eladó birtokba vétel előtt 100%-ban befejezi a munkálatokat, a hirdetett vételár tartalmazza a teljes befejezést.Befektetési potenciál: Az ingatlanpiac stabil növekedést mutat a térségben, így hosszú távon is értékálló befektetés lehet.A két ház egy telken lehetőséget ad arra, hogy akár különálló lakóegységekként, akár üzleti célokra hasznosítsák az ingatlant. Ha további részletekre van szüksége vagy szeretné megnézni, keressen bizalommal. A teljes Duna House ingatlan kínálatával állok rendelkezésére. Keressen bizalommal. | |||


