Eladó Ház, Hajdúszoboszló
Address | |||
| Hungary, Hajdú-Bihar, 4200 Hajdúszoboszló | |||
Building | |||
| Altípus | Sorház | Year of construction | 2021 év |
| Constraction type | Tégla | ||
Technical data | |||
| Heating | Cirkó | Komfort típus | Összkomfort |
General | |||
| Parking | Telken parkoló | ||
Rooms | |||
| Number of bedrooms | 1 | Small rooms | 2 |
Description | |||
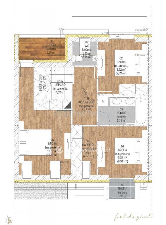
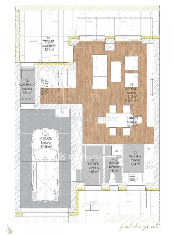
Itt megtalálhatja álmai otthonát! 2021-ben indul és 2022 év végére készül el ez az igényes új építésű 7 db családi házból álló saját kerttel is rendelkező sorház, amely kényelmes és tágas otthona lehet családoknak. A hirdetett B ház mérete 123 nm. A földszint alapterülete 67 nm, az emelet mérete 56 nm. A földszinten mosdó, konyha, étkező, nappali, közlekedő, garázs és terasz található, valamint egy 78 nm-es saját kertrész is tartozik hozzá. Az emeleten 1 szoba, 2 félszoba, közlekedő, fürdő, gardrób, wc, terasz és loggia kerül kialakításra. Egyéb műszaki adatok: 1. Főfalak: 30-as POROTHERM tégla falazat + 15 cm polisztirol hőszigetelés. 2. Válaszfalak: 10 cm vtg. POROTHERM 10 N+F 3. Belső felületképzés: vakolat, glettelés, műanyag diszperziós fehér festék 4. Hideg- és meleg burkolatok: kerámia burkolat hálósan ragasztva (10x10-30x60-ig), fagyálló kerámia burkolat az erkélyen 5. Belső és külső nyílászárók: műanyag tok- és szárnyszerkezetűek, 3 rétegű hőszigetelt üvegezéssel készülnek, egyedi gyártással, kívül-belül fehér színben, borovi típusú belső dekor egyedi ajtók, tele ajtólapokkal gyártott a terv szerinti méretekkel és színben bruttó (49.000) Ft. 6. Bejárati ajtók: Doorpanel hőszigetelt, fokozott légzárású, öt ponton záródó műanyag ajtó 7. Ablakkönyöklő: belül fehér kávázott fal színű, kívül színes bádog párkány. 8. Klíma: Házanként 1 db klíma szerelődobozzal együtt bruttó (130.000 Ft) Felár ellenében a többi helyiség csövezése is kérhető. Whirpool Swip 312L típusú. 9. Gázkazán: Házanként 1 db Saunier duval 24 kW teljesítményű, kondenzációs fali gázkazán, saját égéstermék elvezető rendszerével (bruttó 200.000,- Ft értékben) 10. Fűtés: Dunaferr Lux típusú radiátor, fürdőszobákban törölközőszárító. 11. Szaniterek: - mosdó: Alföldi típusú porcelán (bruttó 10.000,- Ft), Hansgrohe Logis típusú csapteleppel (bruttó 20.000,- Ft) - WC csésze: Alföldi típusú porcelán (bruttó 10.000,- Ft) - WC öblítő tartály Geberit típusú, műanyag, teljes belső szerkezettel (bruttó 10.000,- Ft) - WC ülőke: műanyag (bruttó 4.000,- Ft) - Zuhanykabin: bruttó (50.000,- Ft) vagy opcionálisan választható fürdőkád (bruttó45.000,- Ft) Hansgrohe Logis típusú csapteleppel (bruttó 20.000,- Ft) 12. Villanyszerelés: Miele szerelvények (bruttó 1.000,- Ft/db) 13. Komplett kaputelefon kiépítése 14. TV, telefon, klíma komplett becsövezése. 15. Távvezérlésű bejárati kapu és garázskapu. 16. Térkő LEIER típusú 6 cm vastag. 17. Tetőtéri ablakok FAKRO típusú standard kivitelben U3 üvegezéssel ellátva. További információért hívjon bizalommal. A helyszíni bejárással, tervdokumentációkkal szívesen rendelkezésre állok, akár hétvégén is. OTP Banki hátterünk CSOK, Babaváró hitel és egyéb pénzügyi támogatások formájában is segítséget nyújt. Érd.: OTP Ingatlanpont Debrecen +36-70-708-2396 Referencia szám: M200894 | |||


