Eladó Ház, Gádoros

Pénzügyek
(tájékoztató példa, nem minősül ajánlatnak)

Vételár
16 000 000 Ft

25% önerő
4 000 000 Ft

Lakáskölcsön (piaci)
12 000 000 Ft

Törlesztőrészlet 20 éves futamidővel 117 415 Ft

Az itt látható számok, jelen piaci körülmények között általánosan elérhető lehetőségek közül kerültek kiemelésre, így nem ajánlattétel, minden esetben pontos minősítés szükséges.
Address
Hungary, Békés, 5932 Gádoros
Building
AltípusCsaládiYear of construction1950 év
Constraction typeVegyes
Technical data
HeatingKonvektorKomfort típusKomfortos
General
ParkingTeremparkoló
Rooms
Number of bedrooms4
Description

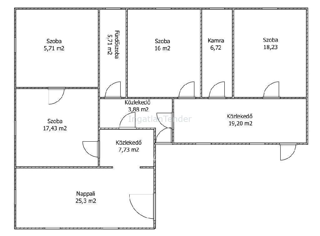
Eladásra kínálom Békés vármegyében Gádoroson, ezt a 1457 m2 es telken lévő 130 m2 -es házat. Az ingatlan korszerűsítésre szorul, így saját igényei szerint alakíthatja ki leendő otthonát! Fűtése gázkonvektoros, falazata vegyes. A házban található 4 szoba és egy nappali, konyha és fürdőszoba. Közelben található bolt, étterem és buszmegálló is. Ideális nagy családosoknak, a vidéki nyugalom kedvelőinek! Legyen Ön is megbízónk, és adja el rajtunk keresztül ingatlanát! Kedvező hitel ajánlatokkal (BABAVÁRÓ hitel, piaci hitel, és szabadfelhasználású hitel) várjuk jelentkezését. Számos konstrukció közül választhatnak. Irodáink Szentes, Petőfi utca 12. (a buszmegálló felől) és Csongrád, Fő utca 54. szám alatt várja a személyes érdeklődőket. ***VÁLASSZUK KI EGYÜTT AZ ÖNNEK LEGMEGFELELŐBB AJÁNLATOT BANKI SORBAN ÁLLÁS NÉLKÜL! ***

Referencia szám: M298309-ITE

Sell — House
  • Square:130 m2
  • Plot area (m2):1457 ares
  • Number of bedrooms:4
  • Listing ID:659429
  • Sell price
  • 41 065
    €/m2 316
Listing was posted by

Take a photo of the code below with your phone and view the ad on other devices also.

Looking for real estates?

Regisztráljon keresőként, akár kiemelésekkel

apply paid services

Similar listings
^ Go up