Eladó Ház, Ercsi
Address | |||
| Hungary, Fejér, 2451 Ercsi | |||
Building | |||
| Altípus | Családi | Year of construction | 1974 év |
| Constraction type | Tégla | ||
Technical data | |||
| Heating | Cirkó | Komfort típus | Összkomfort |
| Water | Telken | Gas | Telken |
| Electricity | Telken | ||
General | |||
| Parking | Telken parkoló | ||
Rooms | |||
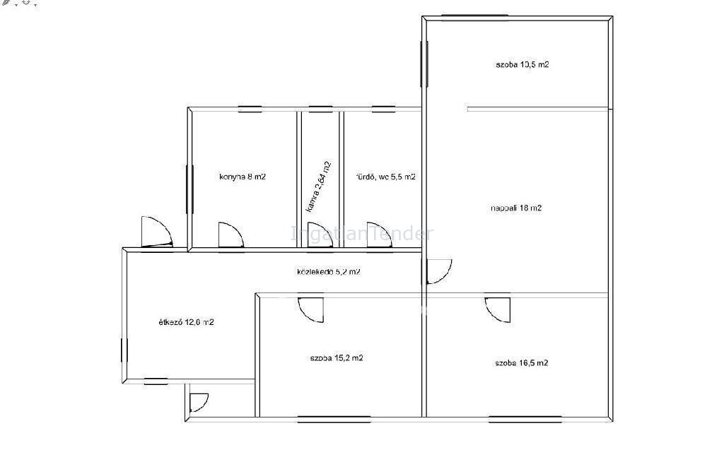
| Number of bedrooms | 3 | ||
Description | |||
Eladó családi ház Ercsiben, két generációs ház külön önálló lakrésszel Ercsi egyik kedvelt részén kínálunk megvételre egy 1974-ben épült, tégla szerkezetű, körbejárható családi házat, amelyhez több praktikus melléképület is tartozik. A telek mérete 735 m2, így bőséges hely jut kertészkedésre, pihenésre és további fejlesztésekre. A ház DNY-i tájolású, 30 cm-es tégla falakkal épült. A padlás szigetelést kapott. A tető cserépfedésű, a kémény jó állapotú, bélelt és folyamatosan használatban volt. Az épület egyszerre, egy ütemben épült, az építési engedélyek pedig rendben vannak. Fő épület jellemzői: Tégla építés. Hangulatos fedett kültéri kiülő. Körbejárható kialakítás. Előkert. Sütögetésre kialakított hely a kertben. Nyílt kocsibeálló. Falvastagság: 30 cm. Cseréptető, jó állapotú, bélelt kémény. Fele részben felújított nyílászárók. Beázás és penészmentes. Összes közmű a telken. Kerti csap. 2 db működő cserépkályha, melyeknek köszönhetően a téli rezsi szinte nulla. Tripla fűtésrendszer: cserépkályha + vegyestüzelés + kedvezményes gáz. Modern, közel félmillió forint értékű biztonsági rendszer (kamerák, érzékelők). A tulajdonos a fürdőszoba és a külső szigetelés felújítását javasolná a következő tulajdonos számára. Melléképületek: Az egyik melléképület teljes értékű lakrész. A telken több melléképület, 1 garázs található, melyek többsége tárolásra alkalmas. Kiemelkedő előny, hogy az egyik melléképület teljes értékű lakrésszé lett alakítva, saját: fürdőszobával, konyhával, fűtéssel. Ez kiváló lehetőség: külön lakrész idősebb családtagnak, kiadható apartmannak, dolgozószoba vagy vállalkozás számára. A telken pince és napelem nincs. Kert: A tágas, 735 m2-es telek gondozott, a kertben kialakított veteményes található, ahol zöldségek termesztésére alkalmas ágyások lettek kialakítva. A telek mérete és formája további fejlesztésekre, melléképületek bővítésére is alkalmas. Környék és közlekedés: Az ingatlan Ercsi frekventált részén található, aszfaltozott utcában. A közelben elérhető: Bolt, pékség, gyógyszertár: 5,10 perc sétára. Iskola, óvoda: kb. 10,15 perc gyalog. Buszmegálló: 3,5 perc séta. Vasútállomás: kb. 5 perc autóval. M6-os autópálya felhajtó: 3,4 perc autóval. A környék biztonságos, a szomszédok kedves, idős emberek, akik vigyáznak a környék nyugalmára. A közelben nincs nagyfeszültség, gyár, szemétégető, szennyvíztelep vagy vasút. Tulajdoni viszonyok: 1 tulajdonos Birtokba adás: legkorábban 2026. augusztus 31. 64900000 Ft Érd.: Lepsényi Kornél +36 Referencia szám: M317592 | |||


