Eladó ház, Budapest 20. ker.

Pénzügyek
(tájékoztató példa, nem minősül ajánlatnak)

Vételár
84 900 000 Ft

25% önerő
21 225 000 Ft

Lakáskölcsön (piaci)
63 675 000 Ft

Törlesztőrészlet 20 éves futamidővel 623 035 Ft

Az itt látható számok, jelen piaci körülmények között általánosan elérhető lehetőségek közül kerültek kiemelésre, így nem ajánlattétel, minden esetben pontos minősítés szükséges.
Address
Hungary, Budapest, 1203 XX. kerület
Building
AltípusCsaládiYear of construction2008 év
Constraction typeTégla
Technical data
HeatingHőszivattyú
General
Orientationdélkelet
Rooms
Number of bedrooms11
Description

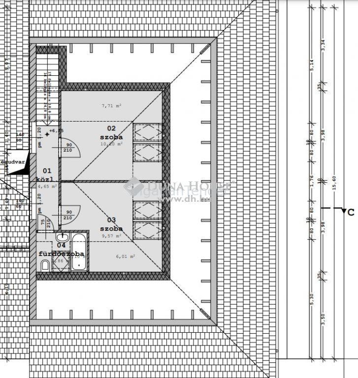
XX.kerületben a Szent Erzsébet térnél a kerület központjában, 535 nm-es telken álló, három szintes négy lakásos társasház TERVEKKEL, DOKUMENTÁCIÓVAL, kedvező haszonnal lehetőségével ELADÓ!A bal oldali telekhatáron álló épület részletesen:-1. (nem) lakószint: 3X11 nm tároló + 16 nm gépészet- földszint: 115 nm fűtött alapterület + 10nm terasz- emelet: 121 nm fűtött alapterület + 6 nm erkély- tetőtér: 26 nm nettó alapterület Jelenlegi tervek alapján 262 nm adható el, autóbeállókat a telken belül kell kialakítani. A tulajdoni lap tehermentes, a befejezés azonnal megkezdhető,az építés nem engedélyköteles. Hőszivattyús fűtés lett tervezve, de ettől igény esetén el lehet térni.További kérdéseivel keressen bizalommal, vagy küldjön üzenetet!

Referencia szám: HZ047979

Sell — House
  • Square:295 m2
  • Plot area (m2):535 ares
  • Number of bedrooms:11
  • Listing ID:103189
  • Sell price
  • 216 720
    €/m2 735
Listing was posted by

Take a photo of the code below with your phone and view the ad on other devices also.

Looking for real estates?

Regisztráljon keresőként, akár kiemelésekkel

apply paid services

Similar listings
^ Go up
Tips
A pontosabb eladási ár meghatározásához használja az árstatisztika funkciót az adminisztrációs felületen.
I don't want any more tips